ویلای مدرن "تعطیلات" نزدیک پیست اسکی آلشیا و در کوهستان سرد و برفی زیبای Sridal واقع شده است.
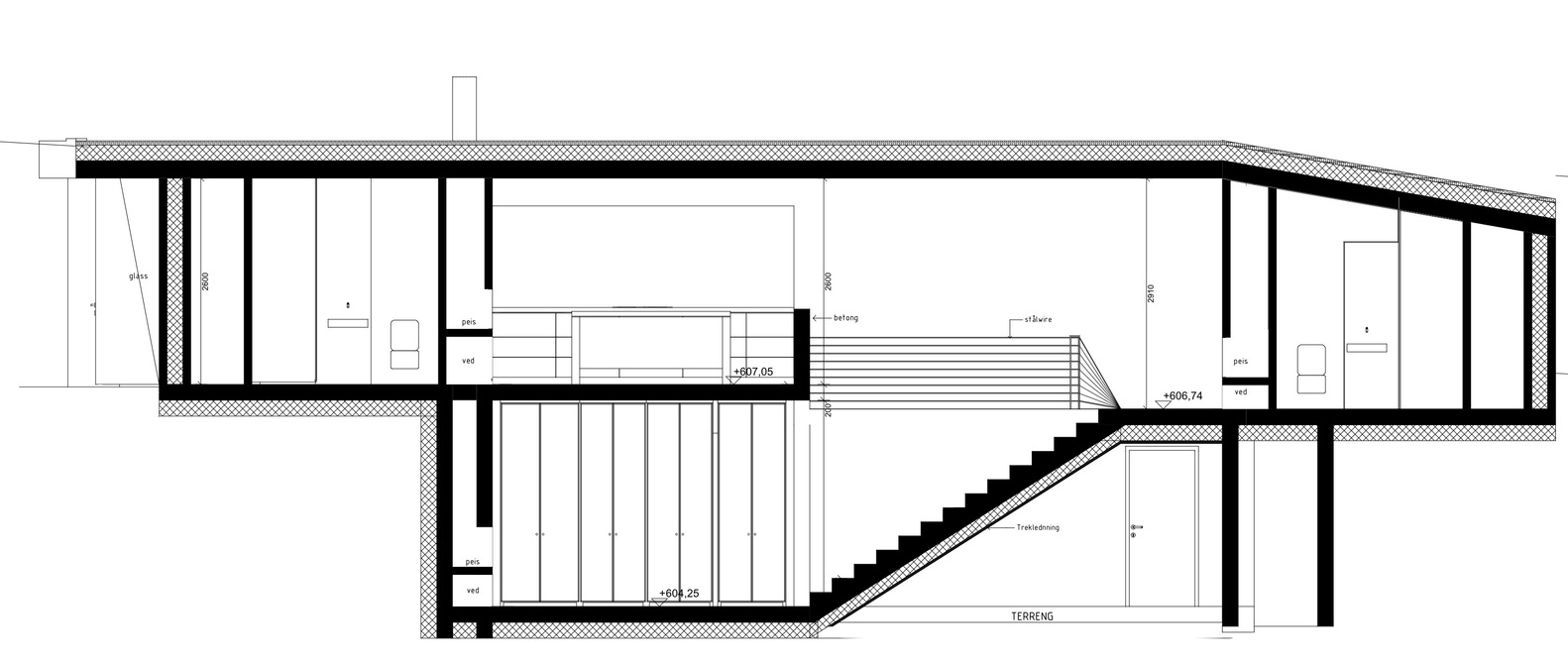
مالکان که به ورزش های زمستانی علاقه دارند، سایت پروژه را انتخاب کرده تا تعطیلات خود را در این مکان بگذرانند. طراحی و اجرای ویلای "تعطیلات" توسط آتلیه معماری Filter Arkitekter انجام شده که دفتر مرکزی این شرکت در شهر اسلو نروژ می باشد. به همین دلیل شرکت طراح و معمار به خوبی با اقلیم و جزئیات اجرایی در چنین مکانی آشنایی داشته است. به دلیل ساخته شدن ویلا بر روی شیب، سقف هر طبقه بر روی زمین منطبق شده است. به دلیل شرایط اقلیمی طراحان از بتن Expose با ضخامت 20 سانت در دیوارهای بیرونی به کار رفته تا تبادل هوای خارج و داخل به حداقل برسد.

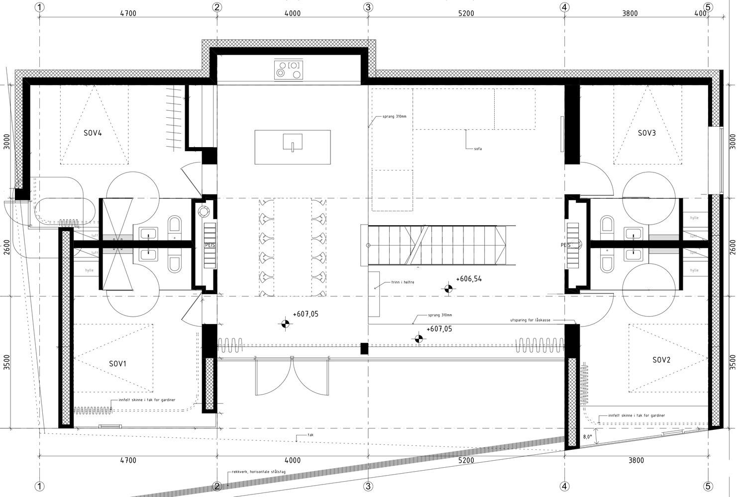
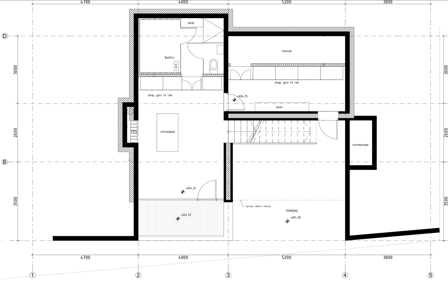
اما زیبایی طراحی یک ویلای بتنی زمانی به چشم می آید که طراح از سبک مینیمال برای تعبیه کل فضاها بهره ببرد. ویلای "تعطیلات" تعطیلات شامل دو اتاق خواب، سونا، آشپزخانه، اتاق ناهارخوری و یک گاراژ است. تعبیه شیشه های گسترده با از بین بردن آستانه پنجره باعث شده تا مالکان به صورت کامل از منظره و کوهستان بهره ببرند. گذراندن تعطیلات خود در چنین مکانی شیک و زیبایی که با ویژگی بروتالیسم ساخته شده می تواند تجربه ای جالب و دوست داشتنی باشد. البته این مکان در تابستان گرم تر شده و با رشد گیاهان و پوشش گیاهی رنگی، ویژگی تازه ای را برای ساکنان ایجاد می کند.







